Graduation Delft
Architecture, Photography & more
Various functions and their interaction with the atrium
Location within Amsterdam
Atrium opening as a window towards the people entering Amsterdam
Open versus closed expression in the urban context
Walkway, restaurant and atrium interior
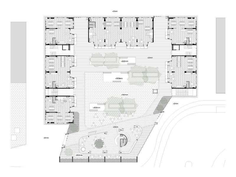
Ground floor atrium and functions
One of the dwelling typologies
Dwelling typology examples & Facade elements
Walkway around dwellings within semi-public atrium
Living & [home]office dwelling module
HUB office space // double dwelling module
Wide walkway with view into atrium and over Amsterdam East
Grand living module
Living & exposition dwelling
Housing Hybrid Atrium // Modern canalhouse
Amsterdam has been known for its canalhouses along its famous canals in the center. Mostly for their atmospheric commercial plinths on the ground floor, and often a dwelling above it for the family involved in the commercial function. This graduation project has taken this seemingly overlooked combination of programs as a starting point for a new type of hybrid building. The dwellings itself are seen as a hybrid building block that integrates living and working, but leaves the way this is done up to it owner(s). Creating a framework of the dwelling with all its necesities (structure, plumbing, etc.) in such a way a variety of lay-outs are possible.
CONTEXT
The area around the buildings in the Eastern Docklands in Amsterdam East can be quite a harsh environment for most parts of the year. That is why there is almost no exterior space with functions, and are most of the ground floors filled with big companies leaving a minimal diversity of only a single function per building. That is why the project has a big atrium (not climatized) that shield the spaces from the harsh winds and highly fluctuating temperatures, in turn creating a pleasant environment for a terrace and open doors almost year-round.
WALKTHROUGH
From the road the atrium is a big eye-catcher that connects all of the functions visually and physically. After entering the restaurant forms a sort of barrier that has to be crossed, possibly catching some visitors to have a coffee before reaching their destination. Throughout the atrium the dwelling modules are all situated with their commercial space towards the atrium. Some of the dwellings have office spaces, a pastry place, a grand living room, or maybe even a gallery. This all adds to the diversity within the building, in turn generating vibrant spaces. In my research vibrancy is one of the necessary elements for a succesfull place.
The section model 1:100 has been chosen as the main model to partially show these qualities. The interaction between the restaurant, walkways and connection to the dwellings are all very clear, and in turn lead all the way up to a recreational space on top of the middle block. Visually everything is connected and through this connection a vibrant and attractive space is created. The project adds a new typology to the already existing small-scale canalhouse, in the form of a more modern dwelling block, as it sits within the context of the Eastern Docklands of Amsterdam.